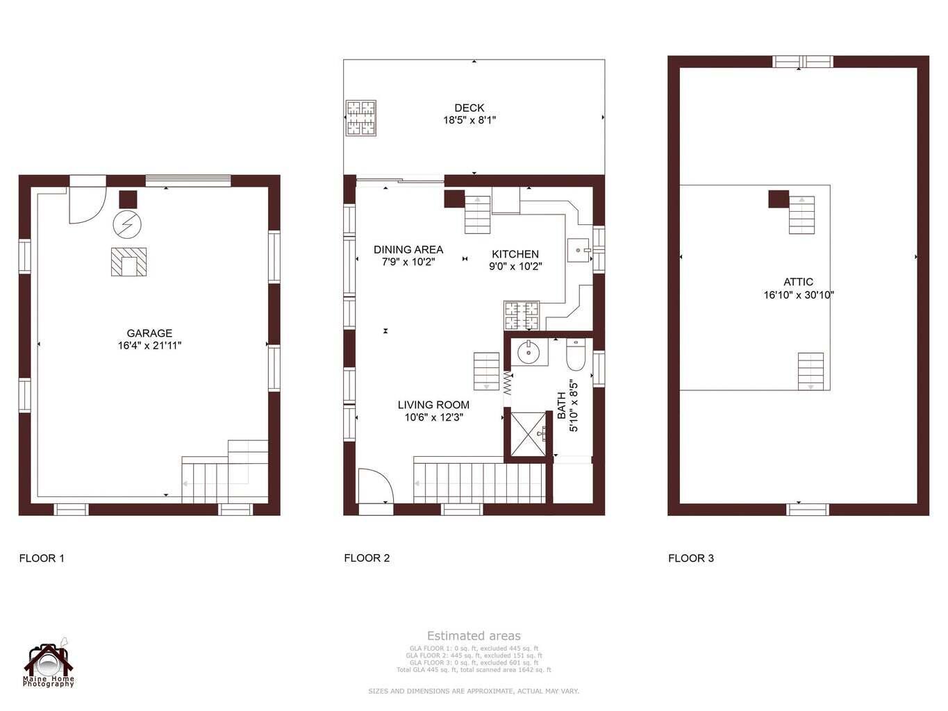
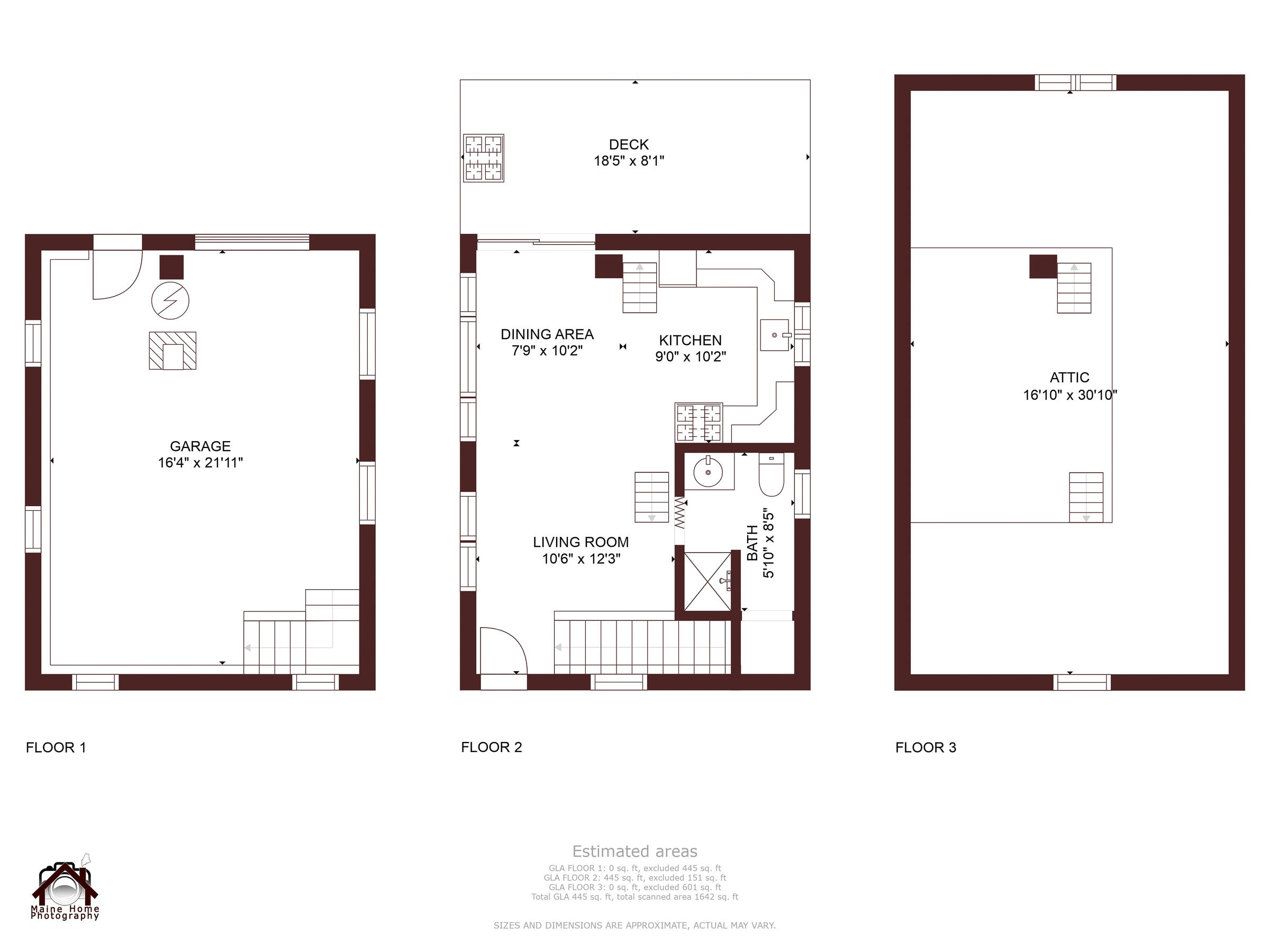
Motivated seller says sell now price drop of $23000 ! Imagine you are a professional building contractor. You come across the perfect 100 acre parcel of prime hunting land. You have the skill, knowledge, and equipment to build your dream camp. You put an 18 by 32 camp on a full foundation and install a septic system with a dug well nearby. You wire the camp and have a generator for electricity. You install propane tanks for your cook stove, refrigerator, and run propane lights. Your cottage has an open concept kitchen-dining -living room bathed in natural light and finished in pine. A sliding door leads to an 18 by 8.5 foot deck and a full bath completes this level. You have two loft areas for sleeping in the tranquil wilderness.Sleeps eight or more comfortably ! The 21.11 by 16.4 lower level is warmed by a wood stove and has plenty of room for you to putter around in this open space complete with overhead door for your ATV to come inside. Enjoy the solitude and privacy on your 100 acres. Plenty of moose droppings and deer rubs on the property. This location is ideal as you are just minutes to to Bingham, Wyman Lake, the Kennebec River, and The Forks. Sugarloaf and Greenville are an easy ride. You are in the center of a recreational paradise. When the conditions are right you can snowmobile and ATV from here. A year round opportunity awaits you to relax and enjoy all that Vacationland has to offer! The seller business is really busy and he wishes he had more time to enjoy. The cedar shake shingles are downstairs waiting to be put on. Tremendous opportunity for your own private compound in coveted Bingham area. You could also subdivide additional lots if that is your wish for family or others! You park at the bridge and use walk or use an AV or side by side to travel up to the cottage , It is 840 steps to the cottage and you are now in the middle of this wilderness . The sellers are motivated to sell and just doesn't have the time to use as they would like !

Listing Tools

Property Details of 0 Little Huston Brook Road

Property Details

Interior Features

Exterior Features

Utilities and Appliances

Map Location

Driving Directions

Listing data is derived in whole or in part from the Maine IDX & is for consumers' personal, non commercial use only. Dimensions are approximate and not guaranteed. All data should be independently verified. ©2025 Maine Real Estate Information System, Inc. All Rights Reserved. equal opportunity housing logo   Privacy Policy

RE/MAX Infinity participates in ©2025 Maine Listings Internet Data Exchange program, allowing us to display other Maine IDX Participants' listings. This website does not display complete listings. Certain listings of other real estate brokerage firms have been excluded. Mortgage figures are estimates. Check with your bank or proposed mortgage company for actual interest rates. This product uses the FRED® API but is not endorsed or certified by the Federal Reserve Bank of St. Louis.

Hi there! How can we help you?

Contact us using the form below or give us a call.

Send Us A Message:

I agree to receive marketing and customer service calls and text messages from RE/MAX Infinity. To opt out, you can reply 'stop' at any time or click the unsubscribe link in the emails. Consent is not a condition of purchase. Msg/data rates may apply. Msg frequency varies. Privacy Policy.

Do not fill in this field:

This site is protected by reCAPTCHA and the Google Privacy Policy and Terms of Service apply.

Hi there! How can we help you?

Contact us using the form below or give us a call.

Send Us A Message:

Do not fill in this field:

This site is protected by reCAPTCHA and the Google Privacy Policy and Terms of Service apply.

Hi there! How can we help you?

Contact us using the form below or give us a call.

Send Us A Message:

Do not fill in this field:

This site is protected by reCAPTCHA and the Google Privacy Policy and Terms of Service apply.

Do not fill in this field:

This site is protected by reCAPTCHA and the Google Privacy Policy and Terms of Service apply.

Do not fill in this field:

This site is protected by reCAPTCHA and the Google Privacy Policy and Terms of Service apply.

Do not fill in this field:

This site is protected by reCAPTCHA and the Google Privacy Policy and Terms of Service apply.

$

Do not fill in this field:

This site is protected by reCAPTCHA and the Google Privacy Policy and Terms of Service apply.