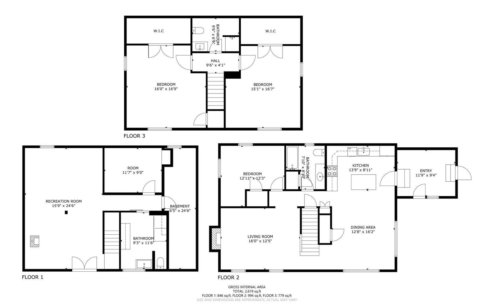
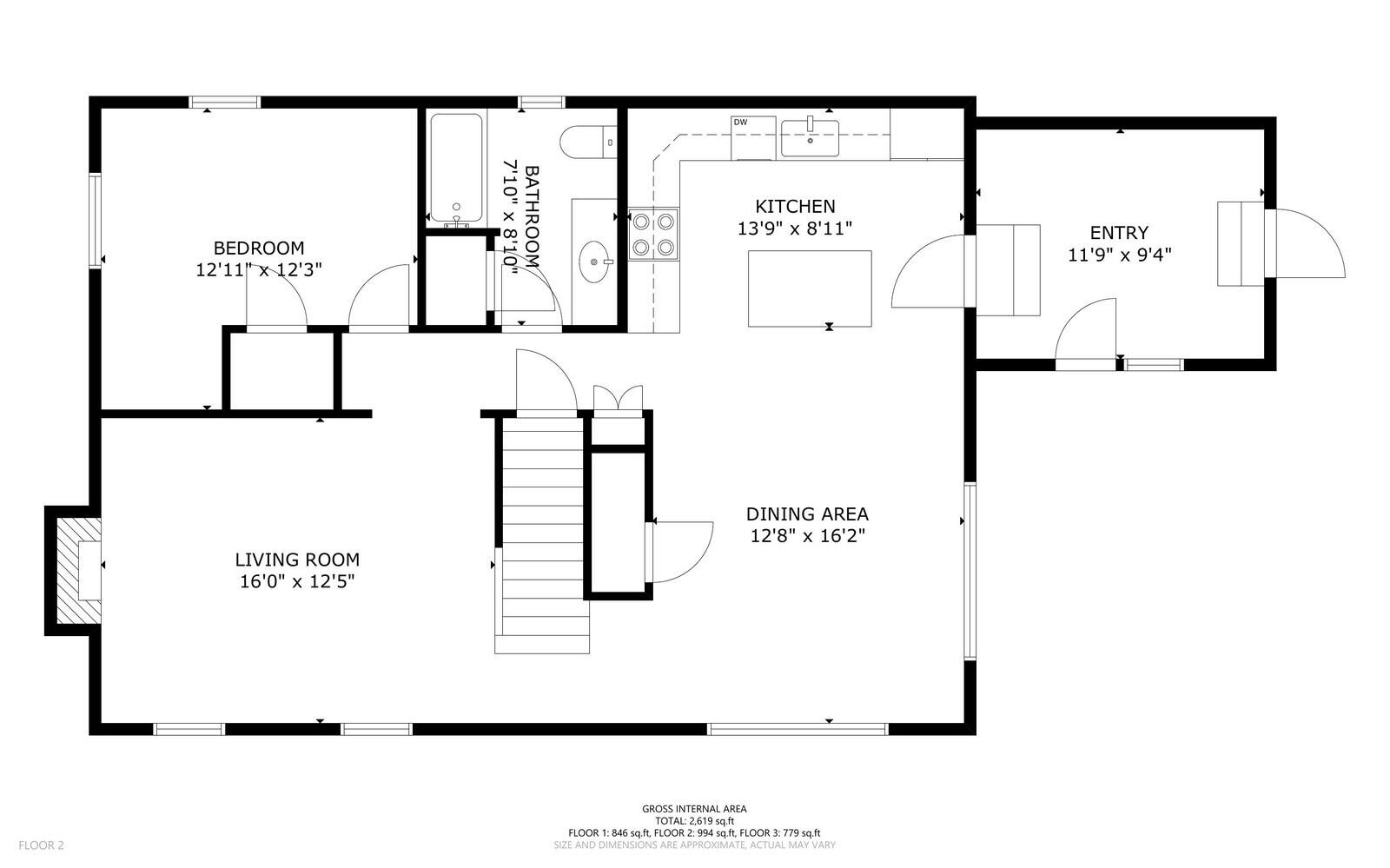
Welcome to 170 Rockwood Drive in China, a beautifully maintained home set on just over an acre with access right across the street to Three Mile Pond. This 3-bedroom, 2.5-bath home offers just over 2500 square feet of living space with thoughtful updates and flexible room arrangements. Step inside through the breezeway into a bright kitchen with a center island, open dining area, and plenty of storage. The main level features a comfortable living room, a first-floor bedroom, and a full bath, perfect for single level living or guest space. Upstairs you'll find two additional bedrooms and a full bath. The finished walk-out daylight basement expands your options with space for a family room, office, or game room, plus convenient laundry access with a chute from upstairs. An attached two-car garage makes everyday life simple.Take advantage of the shared waterfront access with a picnic area and spot to launch a canoe or kayak. This property combines privacy, convenience, and recreation.

Listing Tools

Property Details of 170 Rockwood Drive

Property Details

Interior Features

Exterior Features

Utilities and Appliances

Other Details

Map Location

Driving Directions

Listing data is derived in whole or in part from the Maine IDX & is for consumers' personal, non commercial use only. Dimensions are approximate and not guaranteed. All data should be independently verified. ©2025 Maine Real Estate Information System, Inc. All Rights Reserved. equal opportunity housing logo   Privacy Policy

RE/MAX Infinity participates in ©2025 Maine Listings Internet Data Exchange program, allowing us to display other Maine IDX Participants' listings. This website does not display complete listings. Certain listings of other real estate brokerage firms have been excluded. Mortgage figures are estimates. Check with your bank or proposed mortgage company for actual interest rates. This product uses the FRED® API but is not endorsed or certified by the Federal Reserve Bank of St. Louis.

Hi there! How can we help you?

Contact us using the form below or give us a call.

Send Us A Message:

I agree to receive marketing and customer service calls and text messages from RE/MAX Infinity. To opt out, you can reply 'stop' at any time or click the unsubscribe link in the emails. Consent is not a condition of purchase. Msg/data rates may apply. Msg frequency varies. Privacy Policy.

Do not fill in this field:

This site is protected by reCAPTCHA and the Google Privacy Policy and Terms of Service apply.

Hi there! How can we help you?

Contact us using the form below or give us a call.

Send Us A Message:

Do not fill in this field:

This site is protected by reCAPTCHA and the Google Privacy Policy and Terms of Service apply.

Hi there! How can we help you?

Contact us using the form below or give us a call.

Send Us A Message:

Do not fill in this field:

This site is protected by reCAPTCHA and the Google Privacy Policy and Terms of Service apply.

Do not fill in this field:

This site is protected by reCAPTCHA and the Google Privacy Policy and Terms of Service apply.

Do not fill in this field:

This site is protected by reCAPTCHA and the Google Privacy Policy and Terms of Service apply.

Do not fill in this field:

This site is protected by reCAPTCHA and the Google Privacy Policy and Terms of Service apply.

$

Do not fill in this field:

This site is protected by reCAPTCHA and the Google Privacy Policy and Terms of Service apply.