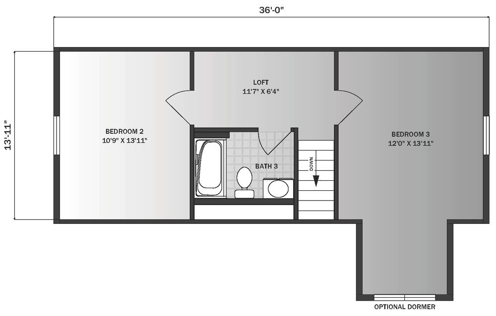
Tucked on a quiet intown cul-de-sac with public water & sewer, this modern 3BR/2.5BA home blends comfort, style, and an efficient layout, close to all Augusta amenities in a very walkable neighborhood. The first floor lives easy with a mud/laundry room, convenient half bath, and an open living/dining area framed by large windows for great natural light. The cook's kitchen features hard quartz countertops, a center island, and painted cabinetry with a handy pantry. A true first-floor retreat, the primary suite offers a spacious walk-in closet and a full bath with double vanity and step-in shower. Upstairs, a flexible loft anchors two comfortable bedrooms and a full bath with tiled shower, ideal for guests, office, or hobbies. Thoughtful storage throughout and a compact footprint make this home both comfortable and economical to maintain. Approx. 1,525± sq. ft. per plan (about 987± sq. ft. on the first floor and 538± sq. ft. on the second). Enjoy a tucked-away setting on the outskirts of town while staying minutes to shopping, dining, schools, and everyday conveniences. Easy living in a great Augusta location. Welcome home to Bayberry Court. *An attached 24x24 garage can be added

Listing Tools

Property Details of 6 Bayberry Court

Property Details

Interior Features

Exterior Features

Utilities and Appliances

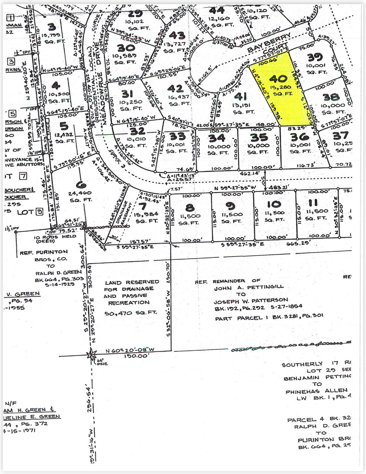
Map Location

Driving Directions

Listing data is derived in whole or in part from the Maine IDX & is for consumers' personal, non commercial use only. Dimensions are approximate and not guaranteed. All data should be independently verified. ©2025 Maine Real Estate Information System, Inc. All Rights Reserved. equal opportunity housing logo   Privacy Policy

RE/MAX Infinity participates in ©2025 Maine Listings Internet Data Exchange program, allowing us to display other Maine IDX Participants' listings. This website does not display complete listings. Certain listings of other real estate brokerage firms have been excluded. Mortgage figures are estimates. Check with your bank or proposed mortgage company for actual interest rates. This product uses the FRED® API but is not endorsed or certified by the Federal Reserve Bank of St. Louis.

Hi there! How can we help you?

Contact us using the form below or give us a call.

Send Us A Message:

I agree to receive marketing and customer service calls and text messages from RE/MAX Infinity. To opt out, you can reply 'stop' at any time or click the unsubscribe link in the emails. Consent is not a condition of purchase. Msg/data rates may apply. Msg frequency varies. Privacy Policy.

Do not fill in this field:

This site is protected by reCAPTCHA and the Google Privacy Policy and Terms of Service apply.

Hi there! How can we help you?

Contact us using the form below or give us a call.

Send Us A Message:

Do not fill in this field:

This site is protected by reCAPTCHA and the Google Privacy Policy and Terms of Service apply.

Hi there! How can we help you?

Contact us using the form below or give us a call.

Send Us A Message:

Do not fill in this field:

This site is protected by reCAPTCHA and the Google Privacy Policy and Terms of Service apply.

Do not fill in this field:

This site is protected by reCAPTCHA and the Google Privacy Policy and Terms of Service apply.

Do not fill in this field:

This site is protected by reCAPTCHA and the Google Privacy Policy and Terms of Service apply.

Do not fill in this field:

This site is protected by reCAPTCHA and the Google Privacy Policy and Terms of Service apply.

$

Do not fill in this field:

This site is protected by reCAPTCHA and the Google Privacy Policy and Terms of Service apply.