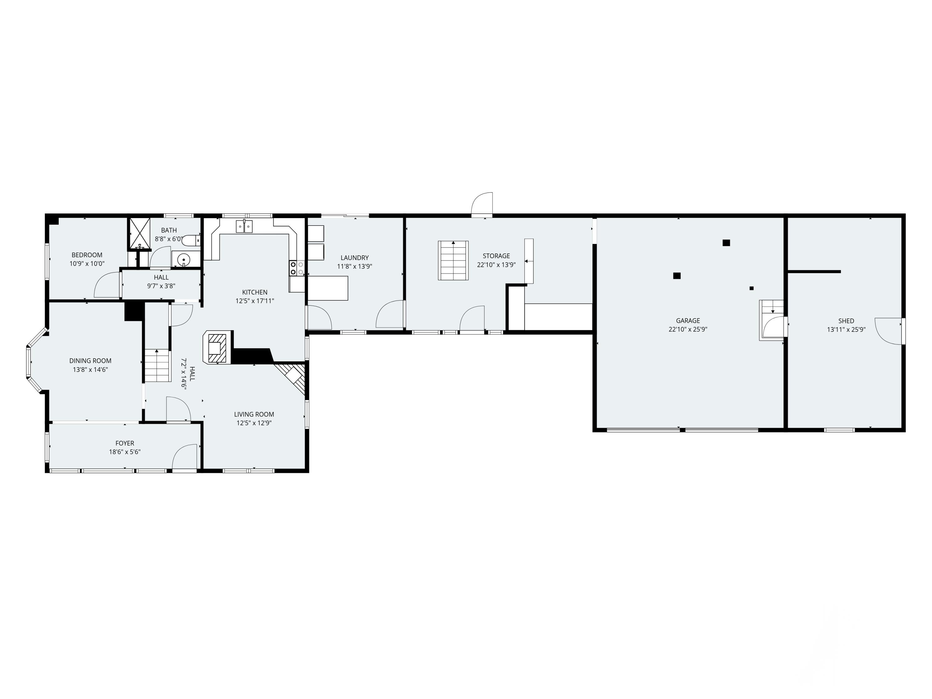
Price Improvement 11/19! Late 1800's Farmhouse with New England Charm on 8.67 Acres. Full of warmth, character, and updates added over the years, this late-1800's farmhouse offers a wonderful blend of old-world charm and modern potential. Featuring 4+ bedrooms and 2 bathrooms, it provides both beauty and functionality. Inside, you'll find generously sized rooms with high ceilings, a large laundry room/mudroom, and a bright, inviting flow throughout. The home includes a large cedar lined walk-in closet, original wide pine floors, multiple built-ins, a heated workshop area, generator hookup, and a walk-up attic for additional storage. Outside you'll find perennial gardens with a spacious barn, a two-car attached garage, as well as a large shed. Westerly views to Mount Washington and the Presidential Range. Whether you prefer to maintain the timeless farmhouse style or add your own modern touches, this home offers a solid foundation to make it your own. Conveniently located near Interstate 95 for easy commuting while still enjoying the peace of country living. Property is being sold ''AS-IS''. Room sizes are approximate.

Listing Tools

Property Details of 730 Beech Hill Road

Property Details

Interior Features

Utilities and Appliances

Map Location

Driving Directions

Listing data is derived in whole or in part from the Maine IDX & is for consumers' personal, non commercial use only. Dimensions are approximate and not guaranteed. All data should be independently verified. ©2025 Maine Real Estate Information System, Inc. All Rights Reserved. equal opportunity housing logo   Privacy Policy

RE/MAX Infinity participates in ©2025 Maine Listings Internet Data Exchange program, allowing us to display other Maine IDX Participants' listings. This website does not display complete listings. Certain listings of other real estate brokerage firms have been excluded. Mortgage figures are estimates. Check with your bank or proposed mortgage company for actual interest rates. This product uses the FRED® API but is not endorsed or certified by the Federal Reserve Bank of St. Louis.

Hi there! How can we help you?

Contact us using the form below or give us a call.

Send Us A Message:

I agree to receive marketing and customer service calls and text messages from RE/MAX Infinity. To opt out, you can reply 'stop' at any time or click the unsubscribe link in the emails. Consent is not a condition of purchase. Msg/data rates may apply. Msg frequency varies. Privacy Policy.

Do not fill in this field:

This site is protected by reCAPTCHA and the Google Privacy Policy and Terms of Service apply.

Hi there! How can we help you?

Contact us using the form below or give us a call.

Send Us A Message:

Do not fill in this field:

This site is protected by reCAPTCHA and the Google Privacy Policy and Terms of Service apply.

Hi there! How can we help you?

Contact us using the form below or give us a call.

Send Us A Message:

Do not fill in this field:

This site is protected by reCAPTCHA and the Google Privacy Policy and Terms of Service apply.

Do not fill in this field:

This site is protected by reCAPTCHA and the Google Privacy Policy and Terms of Service apply.

Do not fill in this field:

This site is protected by reCAPTCHA and the Google Privacy Policy and Terms of Service apply.

Do not fill in this field:

This site is protected by reCAPTCHA and the Google Privacy Policy and Terms of Service apply.

$

Do not fill in this field:

This site is protected by reCAPTCHA and the Google Privacy Policy and Terms of Service apply.